会員限定 CARBINS 01 愛知県 尾張旭市 桜ヶ丘町西413番地 ガレージハウス7戸
名古屋市熱田区にガレージアパート完成!アクセス良好!インターネット使い放題!!
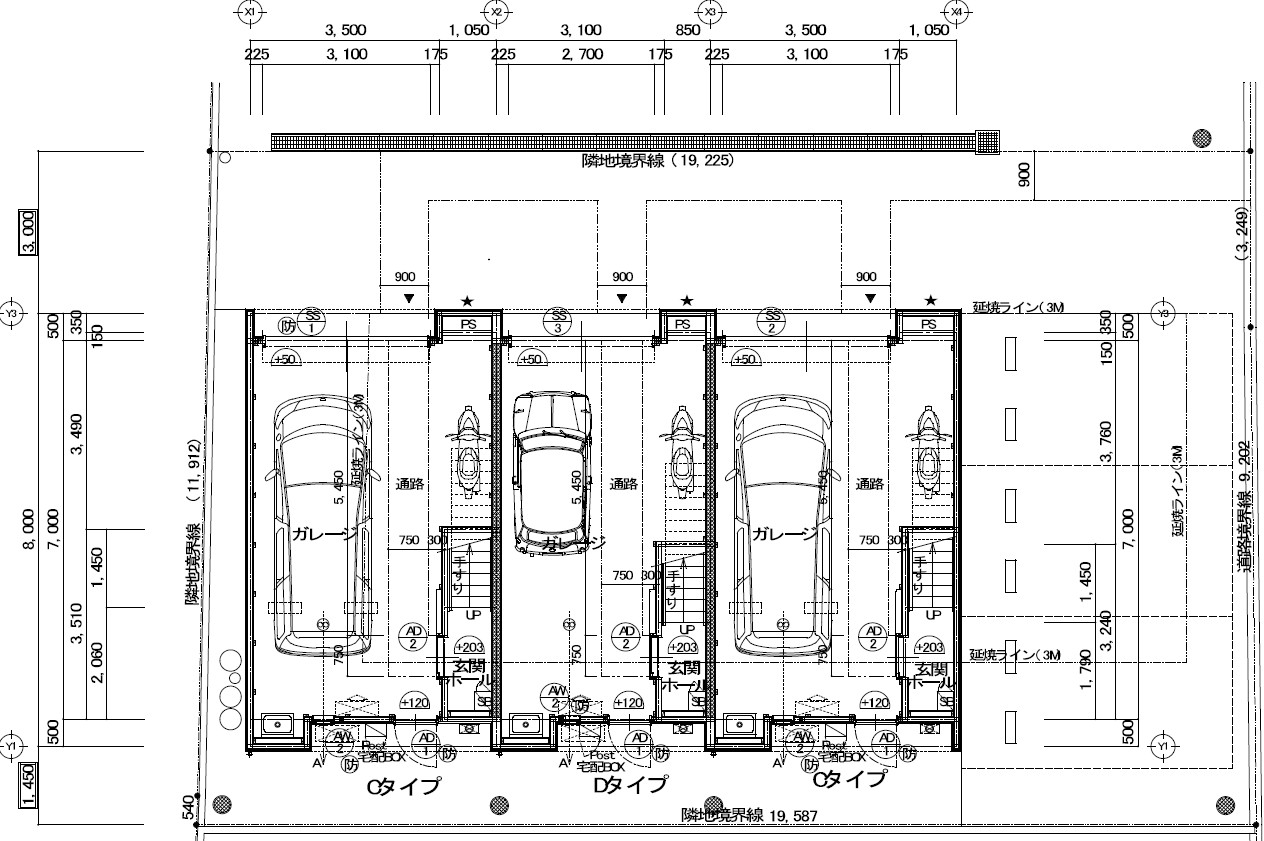
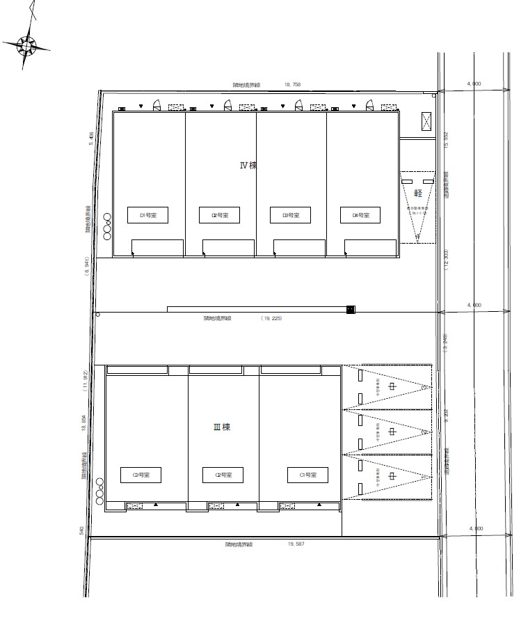
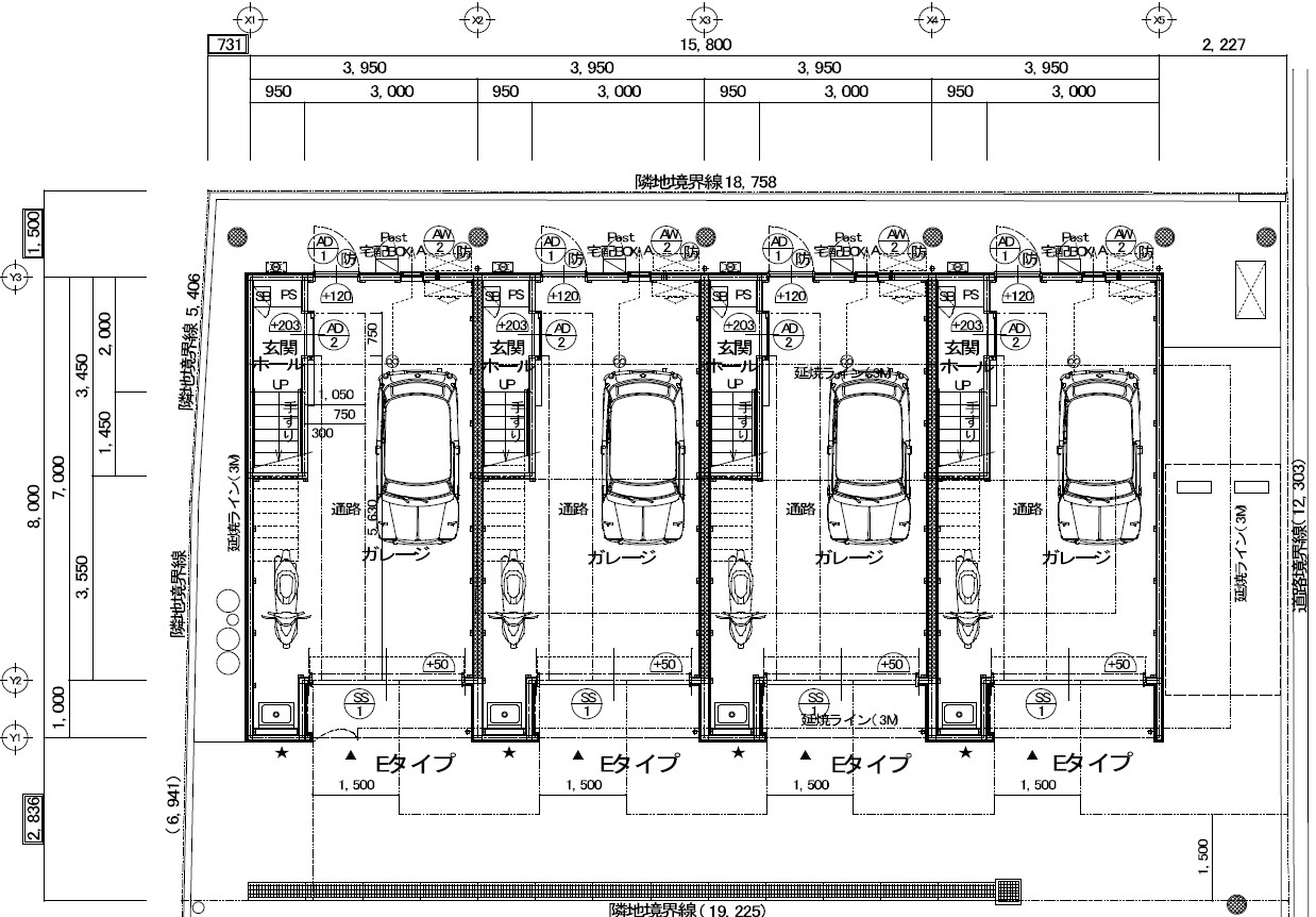
PLAN
見取り図
※画像をクリックすると拡大してご覧いただけます
SPEC
スペック
- 物件概要
-
・名古屋高速IC・地下鉄へのアクセス良好!!
・幅3.0M高さ2.4M広々電動シャッター完備!!
・1LDKタイプ乗用車1台並びにオートバイ1台駐車可能!!
・インターネット使い放題付!! - 竣工日
- 2025年3月
- 交 通
・地下鉄名港線日比野駅徒歩12分
・名古屋高速東海4号線車で3分
- 設 備
-
◆ガレージ内設備
・ シャッター /電動
・ 給水湯設備 /有
・ 換気扇 /人感センサー
・ 電気自動車充電用コンセント200V /有
・ テレビ用ジャック /有
・ 宅配ボックス
・ 付け柱 /有
・ 照明 /レール式・人感センサー
・ エアコン設置 /可
・ 車止め /有・非固定
◆住居設備
・ エアコン /1基(LDK)
・ 照明器具 /有
・ ガス /プロパンガス
・ モニター付インターホン /有・ システムキッチン /有
・ 給湯器 /有
・ 浴室 /有
・ 洗面台 /有・トイレウォッシュレット/有
・ シャンプードレッサー /有
- 賃貸条件
- 部屋一覧「賃料」に記載
- その他
-
ペット不可
追加駐車場3台有(6,600円/台)
軽専用1台(5,500円/台)
MAP
地 図
ROOM
部屋一覧
入居予約をご希望の方は左の予約ボタンを押してください。専用のフォームへ移動します。
- ●:キャンセル待ちなし
- まだご予約が入っていないお部屋です。
- ▲:キャンセル待ちあり
- すでにご予約が入っているお部屋です (やむを得ない事情で入居辞退される方も一定数おられますので、ご入居できる可能性は十分にあります。)
| 入居予約 | No. | 間取り | 広さ | 駐車場 | 賃料 | その他 | 空き状況 | 入居可能日 |
|---|---|---|---|---|---|---|---|---|
| C1 | 1LDK(LDK+1部屋) | LDK10.8帖 洋室3.2帖(ガレージ含めた専有面積66.61㎡) | ガレージ(最大部分) 幅4.3M ×奥行6.8M |
ー | シャッター 幅3.0M ×高さ2.4M |
入居中 | ||
| 予約 | C2 | 1K(1部屋+キッチン) | 洋室 9.8帖(ガレージ含めた専有面積57.15㎡) | ガレージ(最大部分) 幅 3.8M × 奥行 6.8M |
賃料:80000 共益費:4000 駐車場代:別駐車場普通車3台(6,600円/台)、軽専用1台(5,500円/台) |
シャッター 幅 2.6M × 高さ 2.4M |
▲ | 即入居可 |
| C3 | 1LDK(LDK+1部屋) | LDK10.8帖 洋室3.2帖(ガレージ含めた専有面積66.61㎡) | ガレージ(最大部分) 幅 4.3M × 奥行 6.8M |
ー | シャッター 幅 3.0M × 高さ 2.4M |
入居中 | ||
| D1 | 1K(1部屋+キッチン) | 洋室 10.3帖(ガレージ含めた専有面積57.15㎡) | ガレージ(最大部分) 幅 3.8M × 奥行 6.8M |
ー | シャッター 幅 2.6M × 高さ 2.4M |
入居中 | ||
| D2 | 1K(1部屋+キッチン) | 洋室 10.3帖(ガレージ含めた専有面積57.15㎡) | ガレージ(最大部分) 幅 3.8M × 奥行 6.8M |
ー | シャッター 幅 2.6M × 高さ 2.4M |
入居中 | ||
| 予約 | D3 | 1K(1部屋+キッチン) | 洋室 10.3帖(ガレージ含めた専有面積57.15㎡) | ガレージ(最大部分) 幅 3.8M × 奥行 6.8M |
賃料:80000 共益費:4000 駐車場代:別駐車場普通車3台(6,600円/台)、軽専用1台(5,500円/台) |
シャッター 幅 2.6M × 高さ 2.4M |
▲ | 即入居可 |
| D4 | 1K(1部屋+キッチン) | 洋室 10.3帖(ガレージ含めた専有面積57.15㎡) | ガレージ(最大部分) 幅 3.8M × 奥行 6.8M |
ー | シャッター 幅 2.6M × 高さ 2.4M |
入居中 |
| No. | C1 |
|---|---|
| 間取り | 1LDK(LDK+1部屋) |
| 広さ | LDK10.8帖 洋室3.2帖(ガレージ含めた専有面積66.61㎡) |
| 駐車場 | ガレージ(最大部分) 幅4.3M ×奥行6.8M |
| 賃料 | ー |
| その他 | シャッター 幅3.0M ×高さ2.4M |
| 空き状況 | 入居中 |
| 入居可能日 | |
| 入居予約 | |
| No. | C2 |
| 間取り | 1K(1部屋+キッチン) |
| 広さ | 洋室 9.8帖(ガレージ含めた専有面積57.15㎡) |
| 駐車場 | ガレージ(最大部分) 幅 3.8M × 奥行 6.8M |
| 賃料 |
賃料:80000 共益費:4000 駐車場代:別駐車場普通車3台(6,600円/台)、軽専用1台(5,500円/台) |
| その他 | シャッター 幅 2.6M × 高さ 2.4M |
| 空き状況 | ▲ |
| 入居可能日 | 即入居可 |
| 入居予約 | 予約 |
| No. | C3 |
| 間取り | 1LDK(LDK+1部屋) |
| 広さ | LDK10.8帖 洋室3.2帖(ガレージ含めた専有面積66.61㎡) |
| 駐車場 | ガレージ(最大部分) 幅 4.3M × 奥行 6.8M |
| 賃料 | ー |
| その他 | シャッター 幅 3.0M × 高さ 2.4M |
| 空き状況 | 入居中 |
| 入居可能日 | |
| 入居予約 | |
| No. | D1 |
| 間取り | 1K(1部屋+キッチン) |
| 広さ | 洋室 10.3帖(ガレージ含めた専有面積57.15㎡) |
| 駐車場 | ガレージ(最大部分) 幅 3.8M × 奥行 6.8M |
| 賃料 | ー |
| その他 | シャッター 幅 2.6M × 高さ 2.4M |
| 空き状況 | 入居中 |
| 入居可能日 | |
| 入居予約 | |
| No. | D2 |
| 間取り | 1K(1部屋+キッチン) |
| 広さ | 洋室 10.3帖(ガレージ含めた専有面積57.15㎡) |
| 駐車場 | ガレージ(最大部分) 幅 3.8M × 奥行 6.8M |
| 賃料 | ー |
| その他 | シャッター 幅 2.6M × 高さ 2.4M |
| 空き状況 | 入居中 |
| 入居可能日 | |
| 入居予約 | |
| No. | D3 |
| 間取り | 1K(1部屋+キッチン) |
| 広さ | 洋室 10.3帖(ガレージ含めた専有面積57.15㎡) |
| 駐車場 | ガレージ(最大部分) 幅 3.8M × 奥行 6.8M |
| 賃料 |
賃料:80000 共益費:4000 駐車場代:別駐車場普通車3台(6,600円/台)、軽専用1台(5,500円/台) |
| その他 | シャッター 幅 2.6M × 高さ 2.4M |
| 空き状況 | ▲ |
| 入居可能日 | 即入居可 |
| 入居予約 | 予約 |
| No. | D4 |
| 間取り | 1K(1部屋+キッチン) |
| 広さ | 洋室 10.3帖(ガレージ含めた専有面積57.15㎡) |
| 駐車場 | ガレージ(最大部分) 幅 3.8M × 奥行 6.8M |
| 賃料 | ー |
| その他 | シャッター 幅 2.6M × 高さ 2.4M |
| 空き状況 | 入居中 |
| 入居可能日 | |
| 入居予約 |
RECOMMEND
おすすめ物件

